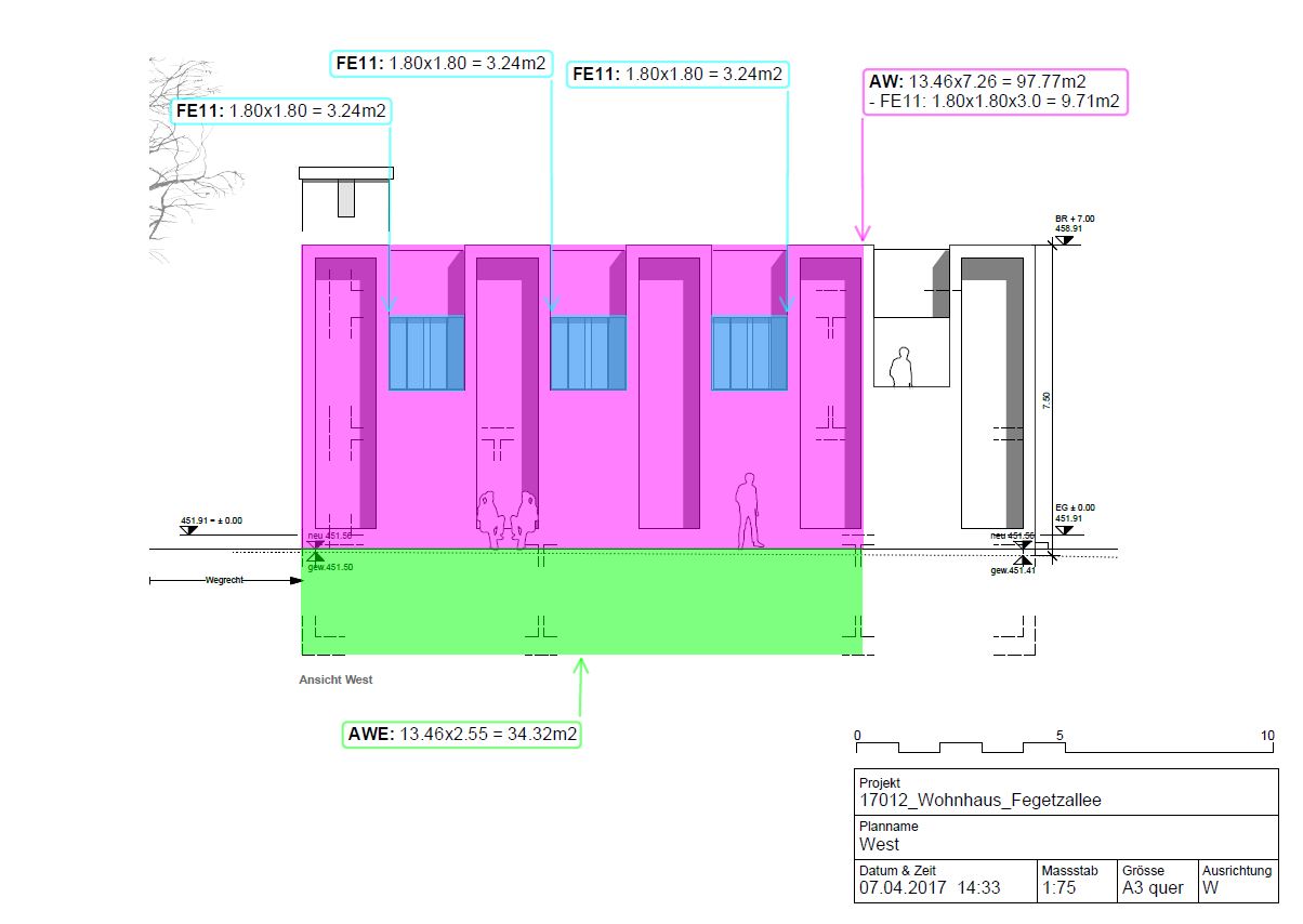
Energienachweis Wohnhaus Fegetzallee, Solothurn
Energienachweis Wohnhaus Fegetzallee, Solothurn
| Jahr | 2017 |
| Kategorie | Neubau EFH, Energienachweis |
| Gewerke | Energie, Gebäudehülle |
Energienachweis Wohnhaus Fegetzallee, Solothurn
| Jahr | 2017 |
| Kategorie | Neubau EFH, Energienachweis |
| Gewerke | Energie, Gebäudehülle |